Bebauungsplan
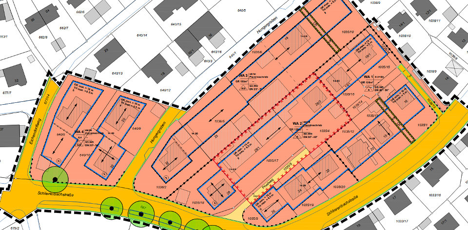
Bebauungsplan Schlierenbachstraße-Hungergraben aus der Anlage 2 zum Tagesordnungspunkt 9 der Gemeinderatssitzung vom 05.10.2017. Das rot umrandete Rechteck in der Mitte ist die Altlast, die blau umrandeten Bereiche sind die Baufenster.
schriftliche Schnellanfrage vom 23.10.2017

Behandlung der Altlastverdachtsfläche „Spedition Schlierenbachstr. 28/1“

Sehr geehrte Damen und Herren,

Auf meine Frage nach der Behandlung der Altlastverdachtsfläche "" in der Sitzung vom 05.10.2017 wurde geantwortet, die Einordnung der Fläche als Handlungsbedarf B ("Belassen") sei Sache des Landratsamtes, die mögliche Altlast Problem des potentiellen Käufers, und die Stadt habe keine Veranlassung, in dieser Sache etwas zu unternehmen.

Andererseits steht Altlastenstatistik 2016 des Landesamtes für Umwelt auf Seite 29:"Mit der Novellierung der FrAl vom 25. März 2014 werden orientierende Untersuchungen auf nicht kommunalen Flächen, die im Zusammenhang mit der Aufstellung eines Bebauungsplans einer Kommune stehen, zu 100 % gefördert, um die Innenentwicklung zu unterstützen."

Die FrAl (Förderrichtlinien Altlasten) präzisiert im Absatz 8.3.1:"im Rahmen der Aufstellung oder Änderung eines Bebauungsplans“

Meine Fragen sind daher:

1) Hat die Stadt Biberach bezüglich der Altlastverdachtsfläche "Spedition Schlierenbachstr. 28/1" einen Antrag auf orientierende Untersuchung nach den Förderrichtlinien Altlasten gestellt? Wenn nicht, warum nicht?

2) Kann die Stadt diesen Antrag noch nachholen, nachdem die Änderung des diesbezüglichen Bebauungsplans am 5.10.2017 verabschiedet wurde?

Weblinks zu den Quellen:
Altlastenstatistik 2016
Förderrichtlinien Altlasten.Dort auf Seite 10 auch ein entsprechender Antrag.

mit freundlichen Grüßen
Ralph Heidenreich

Antwort der Stadtverwaltung vom 25.10.2017

1. Hat die Stadt Biberach bezüglich der Altlastverdachtsfläche "Spedition Schlierenbachstr. 28/1" einen Antrag auf orientierende Untersuchung nach den Förderrichtlinien Altlasten gestellt? Wenn nicht, warum nicht?

Die Stadt hat keinen Antrag auf orientierende Untersuchung nach den „Förderrichtlinien Altlasten – FrAl“ im Zusammenhang mit der Aufstellung des Bebauungsplanes gestellt. Die Förderrichtlinie Altlast (Ziffer 8.3) sieht in besonderen Fällen vor, dass orientierende Untersuchungen auf nicht kommunalen altlastverdächtigen Flächen zum Zwecke der Innenentwicklung zuwendungsfähig sind.
Die Zielsetzung hierbei sind Brachflächen mit Altlasten (§ 34 BauGB-Gebiete), an deren Bebauung auch ein kommunales Interesse besteht oder seitens der Kommune Nachforschungen geboten sind. Diese Voraussetzungen greifen im vorliegenden Fall nicht, da es sich bereits um eine Jahrzehnte lang bebaute Fläche und nicht um eine Brachfläche handelt und auch ein Nachforschungsgebot von kommunaler Seite nicht vorliegt.

Nach Auskunft des Landratsamtes, über das ggf. ein Förderantrag gestellt werden müßte, adressiert die Förderrichtlinie sog. OU-Altlastverdachtsfälle, d.h. Altlastverdachtsflächen, für die bereits der Bedarf einer orientierenden Untersuchung im Rahmen der Altlastkartierung festgelegt wurde. Die vorhandene Altlastverdachtsfläche ist jedoch nicht als OU-Fläche sondern als B-Fläche (B=Belassen) eingestuft. Das Landratsamt hat im Bebauungsplanverfahren auf den Handlungsbedarf „B=Belassen“ hingewiesen und ausgeführt, dass bei Eingriffen in den Boden mit belastetem Bodenmaterial zu rechnen ist. Dieses sei ggf. durch einen Bodensachverständigen zu untersuchen und zu klassifizieren, um eine ordnungsgemäße Verwertung sicherzustellen.

Im Flächenbericht aus dem Jahr 2011 ist zu dieser Altlastverdachtsfläche ausgeführt, dass von Seiten des Gutachters keine Anhaltspunkte auf einen erheblichen Schadstoffeintrag in den Untergrund erkannt wurden. Bei zukünftigen baulichen Eingriffen in den Untergrund sei allerdings auf eine ordnungsgemäße Entsorgung des Aushubs zu achten.
Die Voraussetzungen für die Förderung einer orientierenden Untersuchung für diese private Altlastverdachtsfläche liegt nach unserer Auffassung nicht vor, da es am Erfordernis der orientierenden Untersuchung im Hinblick auf das kommunale Nachforschungsgebot für diesen B-Fall fehlt. Deshalb wurde kein Förderantrag gestellt.

2. Kann die Stadt diesen Antrag noch nachholen, nachdem die Änderung des diesbezüglichen Bebauungsplans am 5.10.2017 verabschiedet wurde?

Ein Antrag für die Förderung einer orientierenden Untersuchung für diese Altlastverdachtsfläche kann grundsätzlich immer noch gestellt werden. Das Landratsamt sieht einen Antrag jedoch als wenig aussichtsreich an, da das kommunale Nachforschungsgebot hier nicht begründbar ist.